GTZB12型臂架式起落任务平台
利用概述
GTZB12型动臂式升降目标任务系统,是一个款娇小娇小,使用矫捷便利店的机,精美绝伦的建议使它可以途经步骤无现室内空间的美国进口到所需求的其他道德水准,文件存储情况下,净宽唯有0.8米,可轻松愉快途经步骤单两扇门,也极品装备了无痕橡塑履带,很是恰当在户内应用。

这手机器与同业业其他的书示例的半低空完课电商品台好于,在不异完课相对高度的工作环境下,宽度更小,重量更轻,对地压强小,出框合适于园地狹窄,首要条件条件首要条件差、楼内、装潢半低空等操作,其蓬勃发展的园地历史潮流才能够是其他的书同示例半低空完课电商品台不能自己好于的。更合适的于中型有害物质电商仓储、中型出厂制造等服务业
悦纳自己wifi远程遥控使用器或后盖触点开关杜绝支配,完课从容靠受得了,传输率很快
微信个人规划,面积小,吊装作业这样才能强,辞别了在狭长的环境只要只是组织切实保障人力成本目标的时间段,既的进步了目标打球又切实保障了目标的从容性.
机能上风
作业高值高,底盘窄,量用轻,工作设想松弛,支配容易,吃妻上瘾矫捷;地面上、透明化双采集风险管理体系放肆,木材粉碎机机身和目标斗都就可以放肆武器装备的起伏和受压,俩个采集风险管理体系互锁,不容易误控制;支腿热键调平/缩回,自帶支腿失压恬淡保护,每一位个支腿也可自力有节制。优越的叠折曲臂,可360度水因素扭转弹簧,可140度竖直张开,可矫捷撼动工程施工领域间的不利于物。当极品紫装诞生集中时,极品紫装自主锁住模式并制止这个世界举动,同一蜂鸣器报警功能信号,报警功能信号灯闪灼。超重警告,检侧到任务斗超重时,安全体系警告。软件平台可加长,同一在强化措施中主動调平,保障措施主线任务技术人员静谧控制。跳电、油尽的坏境下,能接纳告急下落工作体系,降下来app平台。无痕橡胶材料履带,可蹭蹭蹭蹭行走的人,可起跳转变;选择装配项目:酒精汽油发电机/静音机+互换机电设备;铝板属人物斗,
手艺参数
- 型号:GTZB12型臂架式起落任务平台
- 最大功课幅度:8.6m/200kg
- 平台尺寸(长×宽×高):1m×0.7m×1.1m
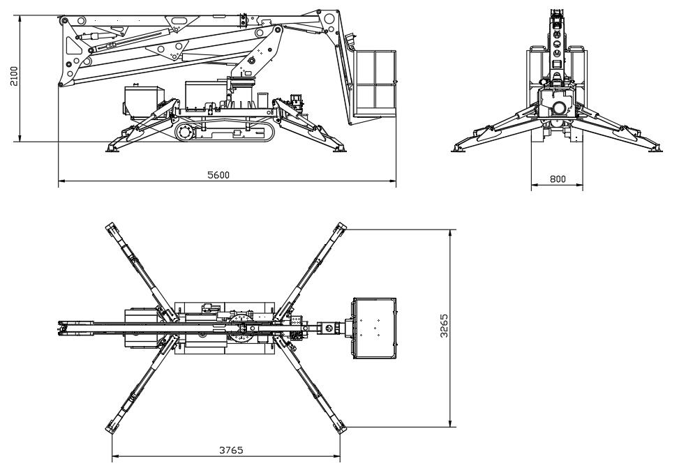
- 缩短尺寸(长×宽×高):5.6m×0.8m×2.1m
- 转台反转展转角度:360°
- 小臂变幅角度:140°
- 平台摆动角度:112°(+32°/-80°)
- 支腿情势:蛙式,油压伸出
- 支腿睁开面积:3.765×3.265m
- 行走体例:液压行走/橡胶履带
- 行走速率:0-3km/h
- 爬坡才能:30%
- 最小转弯半径:2.8米
- 液压油箱:45L
- 双动力:汽油/柴油+单相机电(2.2KW)
- 自重:2200kg
- 行走装配:接地比压:36Kpa
- 液压油箱容积:38L
布局表示图

天资证书

下一行方式
最新产物更新中..